Politique de cookies

Ce site utilise des cookies. En utilisant le site, vous acceptez leur stockage ou leur accès conformément aux paramètres de votre navigateur.

Janisol HI

Fenêtres en acier

Fenêtres oscillo-battantes et vitrines extérieures fabriquées avec des profilés en acier extrêmement fins et avec isolation thermique. Disponibles également en version Corten.

  • Fenêtre passive isolante

  • Isolation acoustique parfaite

  • Résistante et étanche

  • Riche gamme de couleurs

Fenêtres et vitrines extérieures fabriquées avec des profilés en acier à isolation thermique

Le système de fenêtres Janisol HI se caractérise par une haute qualité esthétique et une grande durabilité, tout en respectant les plus exigences les plus élevées en matière d’isolation thermique et acoustique, Rw jusqu’à 46 dB. Le système Janisol HI permet de réaliser des fenêtres d’une hauteur de 2,8 m. Les fenêtres Janisol HI ont fait l’objet de tests anti-effraction et ont obtenu la classe RC3 selon la norme EN 1627.

  •  Elles répondent aux plus hautes exigences en matière d’isolation et garantissent la sécurité et la durabilité, même dans des conditions extrêmes.
    Grâce au triple vitrage isolé, les fenêtres atteignent facilement de parfaites valeurs de conductivité thermique Uw jusqu’à 0,69 W/m2K (pour les vitres fixes) et 0,8 W/m2K (pour les fenêtres).
  • Grâce aux isolants en polyuréthane renforcé avec des fibres de verre, à la pointe de la technologie, le nouveau système de fenêtres présente d’excellentes valeurs statiques et obtient les meilleurs résultats dans les tests de systèmes (air/eau/vent)

Coefficient thermique Uw

Fenêtre de référence aux dimensions 1230 x 1480 mm, avec vitre 4T/18ar/4/18ar/4T Ug=0,5 Multitech Black [48mm]

0,82 W/(m²K)

Étanchéité à l’eau

jusqu’à E750

9.5/10

Notre note

Types de vitrages décoratifs

  • Silvit
  • Master point
  • Master carre
  • Kura
  • Kathedral
  • Delta mat
  • Flutes incolore
  • Crepi
  • Chinchila
  • Delta incolore
  • Mirastar
  • Decormat
  • Stopsol clear
  • Stopsol brun
  • Antisol gris
  • Antisol vert
  • Antisol Bleu
  • Antisol brun
  • Stopsol vert

Intercalaires

  • Cadre chaud blanc RAL 9016

  • Cadre chaud marron RAL 8003

  • Intercalaire à bord chaud, noir

  • Cadre chaud gris RAL 7035

  • Cadre chaud gris RAL 7040

  • Intercalaire en aluminium

  • Cadre chaud marron RAL 8016

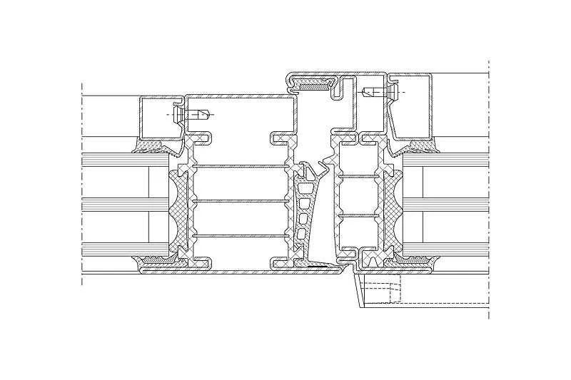
Informations techniques

Dessins techniques

Dessins techniques