Politique de cookies

Ce site utilise des cookies. En utilisant le site, vous acceptez leur stockage ou leur accès conformément aux paramètres de votre navigateur.

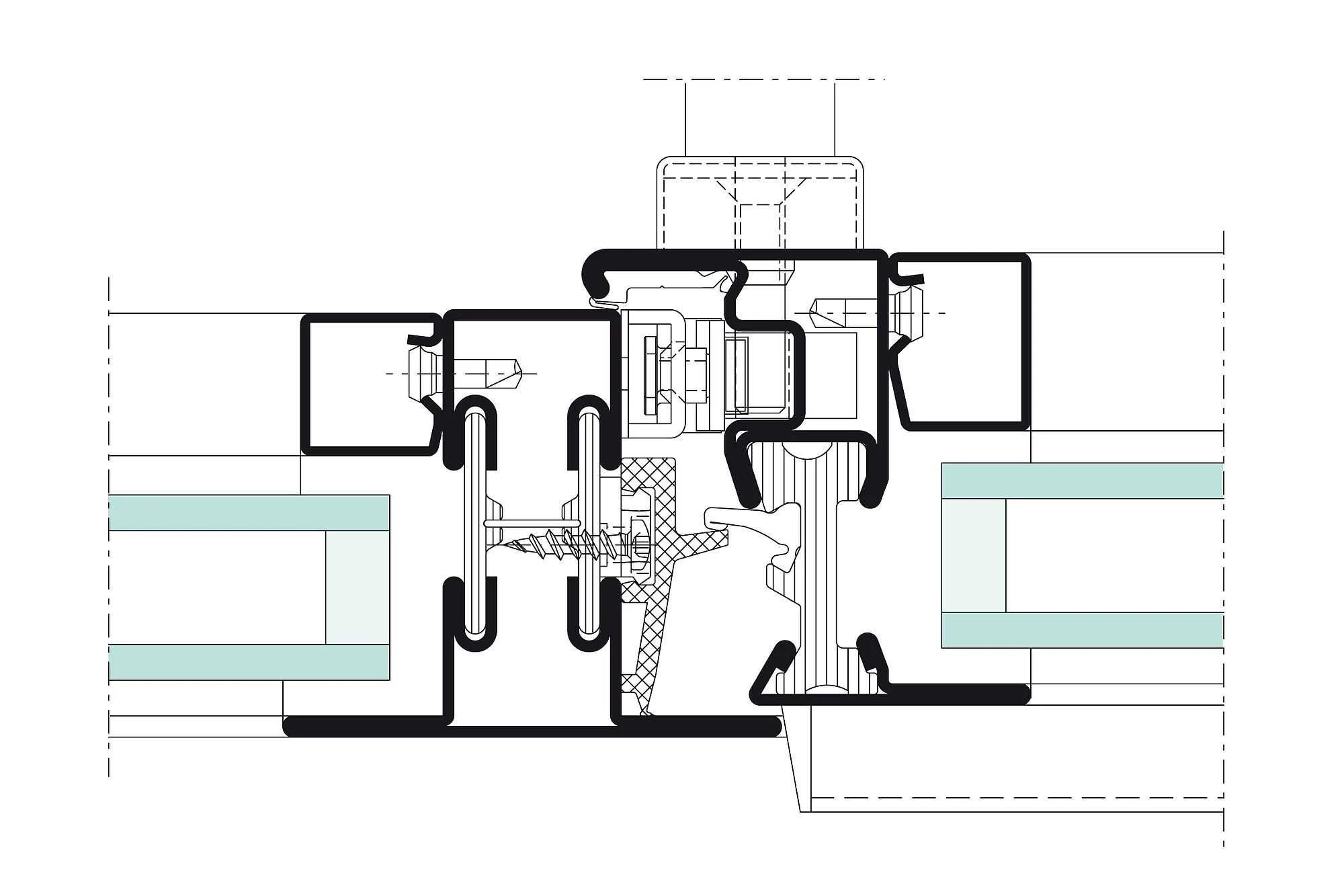
Janisol

Fenêtres en acier

Fenêtres oscillo-battantes et vitrines extérieures fabriquées avec des profilés en acier extrêmement fins et avec isolation thermique. Disponibles également en version Corten.

  • Fenêtre passive isolante

  • Isolation acoustique parfaite

  • Résistante et étanche

  • Riche gamme de couleurs

Fenêtres, portes et vitrines extérieures fabriquées avec des profilés à isolation thermique

Les profilés fins et les divers moyens d’ouverture permettent d’utiliser les fenêtres des systèmes Jansen Janisol dans les bâtiments d’utilité publique et les résidences privées. Les fenêtres sont fabriquées avec des profilés en acier à isolation thermique ou en acier inoxydable, nuance 1.4401 (AISI 316L)

Les fenêtres Janisol peuvent être également utilisées comme des cloisons anti-effraction et pare-balles.

Coefficient thermique Uw

Fenêtre de référence aux dimensions 1230 x 1480 mm, avec vitre 4/16ar/4T Ug=1,0 Multitech Black [24mm]

1,5 W/(m²K)

Étanchéité à l’eau

jusqu’à 8A

8/10

Notre note

Types de vitrages décoratifs

  • Silvit
  • Master point
  • Master carre
  • Kura
  • Kathedral
  • Delta mat
  • Flutes incolore
  • Crepi
  • Chinchila
  • Delta incolore
  • Mirastar
  • Decormat
  • Stopsol clear
  • Stopsol brun
  • Antisol gris
  • Antisol vert
  • Antisol Bleu
  • Antisol brun
  • Stopsol vert

Intercalaires

  • Cadre chaud blanc RAL 9016

  • Cadre chaud marron RAL 8003

  • Intercalaire à bord chaud, noir

  • Cadre chaud gris RAL 7035

  • Cadre chaud gris RAL 7040

  • Intercalaire en aluminium

  • Cadre chaud marron RAL 8016

Informations techniques

Dessins techniques

Dessins techniques