Politique de cookies

Ce site utilise des cookies. En utilisant le site, vous acceptez leur stockage ou leur accès conformément aux paramètres de votre navigateur.

Aliplast Ultraglide

systèmes coulissants ALU

Systèmes à isolation thermique supérieure

  • Isolation acoustique parfaite

  • Résistante et étanche

  • Riche gamme de couleurs

Aliplast Ultraglide

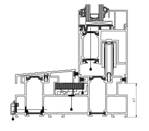
  • Système à isolation thermique supérieure, conçu pour les structures coulissantes ou levantes-coulissantes. Les systèmes coulissants UG sont adaptés à l’utilisation dans la construction de logements, en particulier de maisons individuelles et de bâtiments d’utilité publique.
  • Système adapté aux exigences les plus récentes en matière d’isolation thermique, de design et de sécurité : options disponibles du système :
    • UG version avec seuil bas,
    • UG - solution à un angle de 90°. 
  • Grâce à ses paramètres, le système permet de réaliser des vantaux coulissants aux grandes dimensions : les dimensions maximales possibles pour le système sont les suivantes : hauteur du vantail 3300 mm et largeur du vantail 3500 mm.
  • Possibilité d’utiliser différents types de remplissage (vitre à une ou deux chambres).
  • Le système est adapté aux exigences les plus récentes en matière d’isolation thermique. Le système comprend : un intercalaire thermique d’une largeur de 22 mm et de 28 mm, renforcé avec des fibres de verre, des inserts thermiques et des inserts sous la vitre améliorant l’isolation thermique de la section.
  • Options disponibles : versions UG, UGi, UG i+
  • Le système permet la construction de grandes baies vitrées, ce qui assure un excellent accès de la lumière naturelle et facilite l’aménagement, tout en gardant la stabilité, la fonctionnalité et la légèreté de la construction.

Coefficient thermique Uw

Pour construction dans le schéma A dimensions de 2500 x 2200 mm, avec vitre 4T/18ar/4/18ar/4T Ug=0,5 Multitech Black [48mm]

0,97 W/(m²K)

Étanchéité à l’eau

jusqu’à 7A

8/10

Notre note:

Types de vitrages décoratifs

  • Silvit
  • Master point
  • Master carre
  • Kura
  • Kathedral
  • Delta mat
  • Flutes incolore
  • Crepi
  • Chinchila
  • Delta incolore
  • Mirastar
  • Decormat
  • Stopsol clear
  • Stopsol brun
  • Antisol gris
  • Antisol vert
  • Antisol Bleu
  • Antisol brun
  • Stopsol vert

Intercalaires

  • Cadre chaud blanc RAL 9016

  • Cadre chaud marron RAL 8003

  • Intercalaire à bord chaud, noir

  • Cadre chaud gris RAL 7035

  • Cadre chaud gris RAL 7040

  • Intercalaire en aluminium

  • Cadre chaud marron RAL 8016

Informations techniques

Dessins techniques

Fichiers à télécharger

Dessins techniques