Politique de cookies

Ce site utilise des cookies. En utilisant le site, vous acceptez leur stockage ou leur accès conformément aux paramètres de votre navigateur.

Aliplast VG Plus

systèmes coulissants ALU

Aliplast VG Plus réunit le design moderne et la fonctionnalité, offrant des solutions flexibles et esthétiques.

 

  • Isolation acoustique parfaite

  • Résistante et étanche

  • Riche gamme de couleurs

Aliplast VG Plus

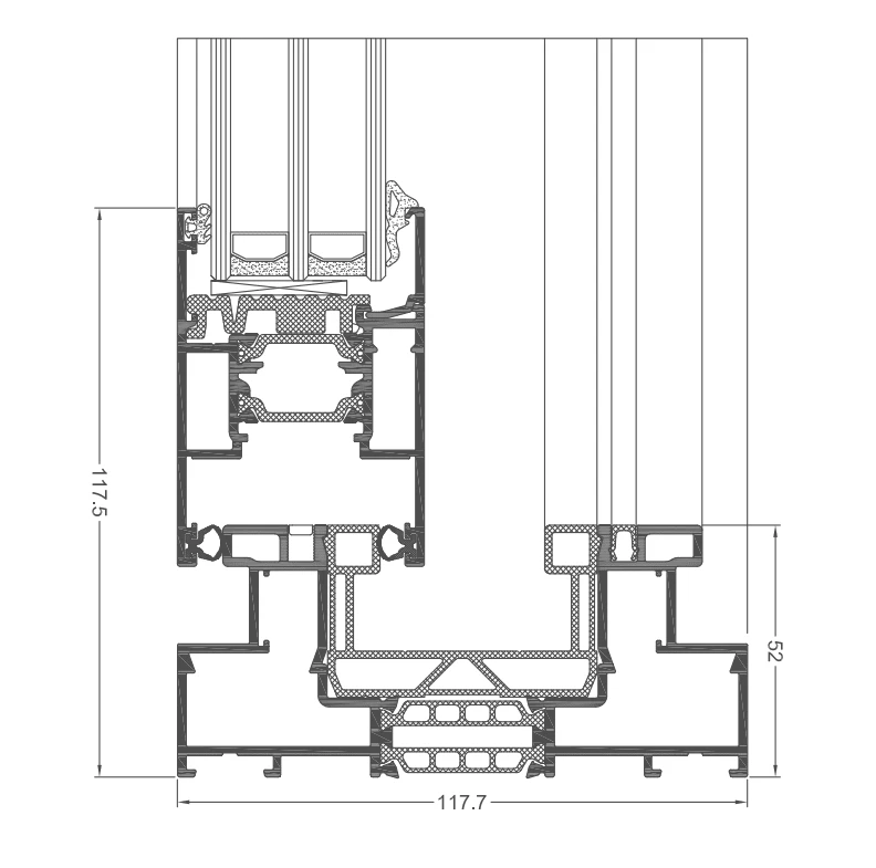
Le système Aliplast VG Plus est une solution avancée pour la réalisation de portes coulissantes, basée sur une construction en profilés d'aluminium à trois chambres. Grâce à l'utilisation de ruptures thermiques à isolation renforcée, le système offre une excellente efficacité énergétique.

 

Points forts du système:

  • Isolation thermique: le système comporte des intercalaires de rupture de pont thermique pour une efficacité énergétique élevée.
  • Options de construction: Versions coulissante et levante-coulissante disponibles, avec solution Monorail.
  • Design étroit: montant à labyrinthe extrêmement étroit de 34 mm en version coulissante et levante-coulissante.
  • Flexibilité de configuration: Possibilité de fabriquer des constructions à deux, trois, quatre et six éléments sur la base d'un dormant à deux ou trois rails.
  • Système Flyscreen: Installation optionnelle d'une moustiquaire, offrant une protection contre les insectes.
  • Large gamme de couleurs: RAL, couleurs structurelles, imitation bois, imitation pierre et finitions anodisées et bicoloration.

 

Coefficient thermique Uw

Étanchéité à l’eau

9.5/10

Notre note:

Types de vitrages décoratifs

  • Silvit
  • Master point
  • Master carre
  • Kura
  • Kathedral
  • Delta mat
  • Flutes incolore
  • Crepi
  • Chinchila
  • Delta incolore
  • Mirastar
  • Decormat
  • Stopsol clear
  • Stopsol brun
  • Antisol gris
  • Antisol vert
  • Antisol Bleu
  • Antisol brun
  • Stopsol vert

Intercalaires

  • Cadre chaud blanc RAL 9016

  • Cadre chaud marron RAL 8003

  • Intercalaire à bord chaud, noir

  • Cadre chaud gris RAL 7035

  • Cadre chaud gris RAL 7040

  • Intercalaire en aluminium

  • Cadre chaud marron RAL 8016

Informations techniques

Dessins techniques

Fichiers à télécharger

Dessins techniques

Fichiers à télécharger