Politique de cookies

Ce site utilise des cookies. En utilisant le site, vous acceptez leur stockage ou leur accès conformément aux paramètres de votre navigateur.

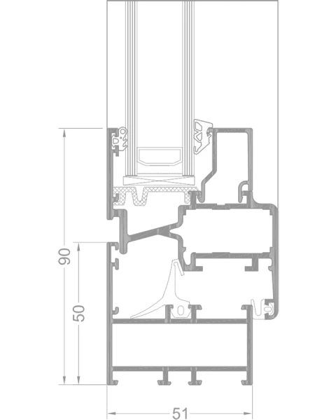
Aliplast Econoline

Fenêtres aluminium

Système de fenêtres sans isolation thermique

Système conçu pour la construction de portes et fenêtres sans isolation thermique

Système conçu pour la construction d’éléments architecturaux intérieurs et extérieurs : fenêtres, portes et cloisons, qui ne nécessitent pas d’isolation thermique et à utiliser dans les bâtiments d’utilité publique et industriels (dans les bureaux).

 Il est possible d’intégrer la porte du système Econoline dans les cloisons construites avec des segments Econoline ou dans d'autres cloisons.

 Il est également possible de construire des portes coulissantes et battantes, d’assembler les cloisons à des angles différents et même de renforcer les éléments déjà réalisés et montés.

Types de vitrages décoratifs

  • Silvit
  • Master point
  • Master carre
  • Kura
  • Kathedral
  • Delta mat
  • Flutes incolore
  • Crepi
  • Chinchila
  • Delta incolore
  • Mirastar
  • Decormat
  • Stopsol clear
  • Stopsol brun
  • Antisol gris
  • Antisol vert
  • Antisol Bleu
  • Antisol brun
  • Stopsol vert

Intercalaires

  • Cadre chaud blanc RAL 9016

  • Cadre chaud marron RAL 8003

  • Intercalaire à bord chaud, noir

  • Cadre chaud gris RAL 7035

  • Cadre chaud gris RAL 7040

  • Intercalaire en aluminium

  • Cadre chaud marron RAL 8016

Informations techniques

Dessins techniques

Dessins techniques