Politique de cookies

Ce site utilise des cookies. En utilisant le site, vous acceptez leur stockage ou leur accès conformément aux paramètres de votre navigateur.

Aliplast Genesis 75​

Fenêtres aluminium

Système de fenêtres à trois chambres conçu pour le montage de fenêtres à l’isolation thermique accrue. Les paramètres thermiques de Genesis 75 répondent aux exigences en vigueur depuis 2021 (Uw jusqu’à 0,90).

  • Fenêtre passive isolante

  • Isolation acoustique parfaite

  • Résistante et étanche

  • Riche gamme de couleurs

C’est un système moderne de portes et fenêtres à trois chambres, aux paramètres d’isolation thermique supérieurs.

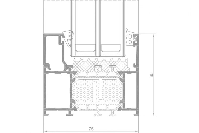
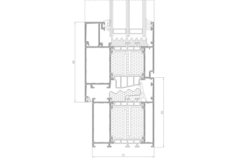
La base du système Genesis 75 est constituée de profilés d’une profondeur de 75 mm. 

Genesis 75 est un système destiné à la conception de fenêtres dans les bâtiments d’utilité publique et les maisons individuelles ou les immeubles résidentiels.

Le système Genesis 75 est construit à partir d’une nouveauté sur le marché - de matériaux d’isolation modernes. Outre le joint central, un joint thermique supplémentaire a été conçu pour la fenêtre. Grâce à cette solution, l’étanchéité de la fenêtre est très élevée (infiltration d’air, imperméabilité).

Produit moderne et esthétique.

Le système de fenêtres Genesis 75 crée un nouveau standard d’isolation thermique tout en garantissant la plus haute ergonomie d’utilisation et la modernité du profilé.

Large choix de couleurs – gamme RAL (Qualicoat 1518), couleurs structurelles, couleurs imitation bois Aliplast Wood Colour Effect (Qualideco PL-0001), anodisé, bicolore.

Coefficient thermique Uw

Fenêtre de référence aux dimensions 1230 x 1480 mm, avec vitre 4T/18ar/4/18ar/4T Ug=0,5 Multitech Black [48mm]

0,76 W/(m²K)

Étanchéité à l’eau

jusqu’à E1350

10/10

Notre note

Types de vitrages décoratifs

  • Silvit
  • Master point
  • Master carre
  • Kura
  • Kathedral
  • Delta mat
  • Flutes incolore
  • Crepi
  • Chinchila
  • Delta incolore
  • Mirastar
  • Decormat
  • Stopsol clear
  • Stopsol brun
  • Antisol gris
  • Antisol vert
  • Antisol Bleu
  • Antisol brun
  • Stopsol vert

Intercalaires

  • Cadre chaud blanc RAL 9016

  • Cadre chaud marron RAL 8003

  • Intercalaire à bord chaud, noir

  • Cadre chaud gris RAL 7035

  • Cadre chaud gris RAL 7040

  • Intercalaire en aluminium

  • Cadre chaud marron RAL 8016

Informations techniques

Dessins techniques

Fichiers à télécharger

Dessins techniques