Politique de cookies

Ce site utilise des cookies. En utilisant le site, vous acceptez leur stockage ou leur accès conformément aux paramètres de votre navigateur.

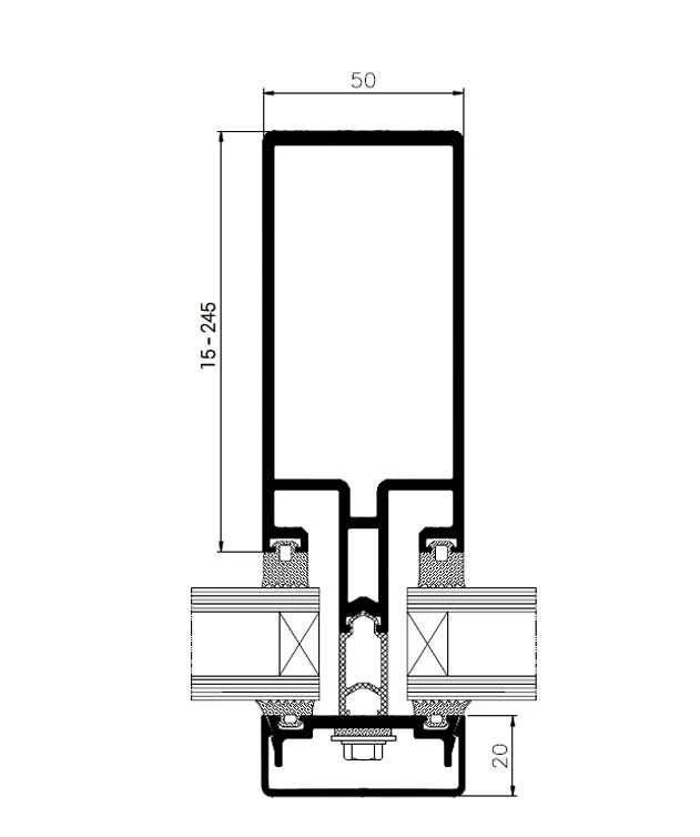
Aluprof MB-SR50N

Murs à montants et traverses

Façades aluminium, murs-rideaux

  • Isolation acoustique parfaite

  • Résistante et étanche

Aluprof MB-SR50N

  • Constructions en aluminium et verre, basées sur des murs-rideaux légers et plats, toitures et verrières
  • Largeur des profilés – 50 mm
  • Isolation thermique – groupe 2.1 et 1.0 selon DIN 4108
  • Vitrages – de 4 à 48 mm
  • Coefficient du transfert thermique du châssis (pour le vitrage de base) – U = 2,21 W/m2K
  • Valeurs esthétiques élevées grâce à des profilés arrondis assurant ce qu’on appelle l’effet soft-line
  • Les meneaux et les traverses utilisés permettent de réaliser des murs avec des lignes de division fines visibles, ce qui garantit leurs pérennité et résistance. 
  • L’utilisation d’un intercalaire thermique continu, réalisé en matériau isolant HPCV et de joints de vitrage moulurés en EPDM limite jusqu’au minimum le niveau de condensation de la vapeur sur les éléments en aluminium et garantit une bonne isolation thermique
  • La division horizontale et verticale des murs (vue de l’extérieur) est accentuée d’une manière élégante. Ceci est assuré par l’utilisation de jMB-SR50PL (à savoir les lignes horizontale et verticale)

Types de vitrages décoratifs

  • Silvit
  • Master point
  • Master carre
  • Kura
  • Kathedral
  • Delta mat
  • Flutes incolore
  • Crepi
  • Chinchila
  • Delta incolore
  • Mirastar
  • Decormat
  • Stopsol clear
  • Stopsol brun
  • Antisol gris
  • Antisol vert
  • Antisol Bleu
  • Antisol brun
  • Stopsol vert

Intercalaires

  • Cadre chaud blanc RAL 9016

  • Cadre chaud marron RAL 8003

  • Intercalaire à bord chaud, noir

  • Cadre chaud gris RAL 7035

  • Cadre chaud gris RAL 7040

  • Intercalaire en aluminium

  • Cadre chaud marron RAL 8016

Informations techniques

Dessins techniques

Fichiers à télécharger

Dessins techniques

Fichiers à télécharger