Politique de cookies

Ce site utilise des cookies. En utilisant le site, vous acceptez leur stockage ou leur accès conformément aux paramètres de votre navigateur.

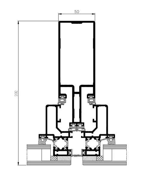
Aluprof MB-SG50

Murs à montants et traverses

Façades aluminium, murs-rideaux

  • Isolation acoustique parfaite

  • Résistante et étanche

Aluprof MB-SG50

  • Système qui permet de réaliser des murs-rideaux, des toitures et des verrières
  • La structure de système MB-SG50 est basée sur les meneaux et traverses, avec des profilés d’une largeur de 50 mm
  • Isolation thermique – groupe 2.1 et 1 selon DIN 4108
  • Vitrages – de 28 à 32 mm Fixation des vitrages aux modules par collage structural
  • Protection mécanique des vitrages extérieurs ponctuellement ou globalement
  • Formes élégantes – remplissages tous les 16 mm, la largeur maximale des profilés vue de l’intérieur ne dépasse pas 85 mm
  • Fixation latérale des châssis permettant de poser des profilés opaques sur l’ensemble du mur
  • Diverses possibilités de montage grâce à la fixation des traverses en applique
  • Le système MB-SG50 ressemble à celui MB-SR50, ce qui permet de mettre côte à côte ces murs-rideaux. De plus, cette ressemblance permet d’utiliser des accessoires de raccordement ou de montage identiques

Types de vitrages décoratifs

  • Silvit
  • Master point
  • Master carre
  • Kura
  • Kathedral
  • Delta mat
  • Flutes incolore
  • Crepi
  • Chinchila
  • Delta incolore
  • Mirastar
  • Decormat
  • Stopsol clear
  • Stopsol brun
  • Antisol gris
  • Antisol vert
  • Antisol Bleu
  • Antisol brun
  • Stopsol vert

Intercalaires

  • Cadre chaud blanc RAL 9016

  • Cadre chaud marron RAL 8003

  • Intercalaire à bord chaud, noir

  • Cadre chaud gris RAL 7035

  • Cadre chaud gris RAL 7040

  • Intercalaire en aluminium

  • Cadre chaud marron RAL 8016

Informations techniques

Dessins techniques

Dessins techniques