Politique de cookies

Ce site utilise des cookies. En utilisant le site, vous acceptez leur stockage ou leur accès conformément aux paramètres de votre navigateur.

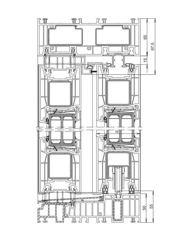
Kömmerling PremiDoor 76

Systèmes coulissants en PVC

La porte levante-coulissante Premidoor 76 est fabriquée avec des profilés en PVC aux paramètres de résistance supérieurs qui permettent de réaliser des portes aux grandes dimensions, s’adaptant à tout type d’intérieur.

  • Fenêtre passive isolante

  • Isolation acoustique parfaite

  • Résistante et étanche

  • Riche gamme de couleurs

Kömmerling PremiDoor 76

  • Possibilité de réaliser des éléments de hauteur maximale de 2,6 mètres et d’une largeur standard de 6,5 mètres.
  • Les portes sont disponibles dans une riche gamme de finition, plaxage, peinture aux couleurs RAL et en version avec capotage aluminium
  • Structure basant sur le profilé Premidoor 76 de la société Kömmerling
  • Vantail à cinq chambres d’une profondeur de construction de 76 mm et un cadre intégré
  • Quincaillerie Siegenia AUBI – HS Portal

Coefficient thermique Uw

Pour construction dans le schéma A dimensions de 2500 x 2200 mm, avec vitre 4T/18ar/4/18ar/4T Ug=0,5 Multitech Black [48mm]

0,84 /(m²K)

Étanchéité à l’eau

jusqu’à 9A

9/10

Notre note:

Types de vitrages décoratifs

  • Silvit
  • Master point
  • Master carre
  • Kura
  • Kathedral
  • Delta mat
  • Flutes incolore
  • Crepi
  • Chinchila
  • Delta incolore
  • Mirastar
  • Decormat
  • Stopsol clear
  • Stopsol brun
  • Antisol gris
  • Antisol vert
  • Antisol Bleu
  • Antisol brun
  • Stopsol vert

Poignées

  • Poignée + Poignée cuvette

  • Poignée double avec cylindre

  • Poignée avec cylindre + cuvette

Intercalaires

  • Cadre chaud blanc RAL 9016

  • Cadre chaud marron RAL 8003

  • Intercalaire à bord chaud, noir

  • Cadre chaud gris RAL 7035

  • Cadre chaud gris RAL 7040

  • Intercalaire en aluminium

  • Cadre chaud marron RAL 8016

Informations techniques

Dessins techniques

Fichiers à télécharger

Dessins techniques

Fichiers à télécharger