Politique de cookies

Ce site utilise des cookies. En utilisant le site, vous acceptez leur stockage ou leur accès conformément aux paramètres de votre navigateur.

Reynaers MasterPatio

systèmes coulissants ALU

Créé par des experts

  • Porte coulissante passive isolante

  • Isolation acoustique parfaite

  • Résistante et étanche

  • Riche gamme de couleurs

MasterPatio

  • MasterPatio est l’un des systèmes levants-coulissants le plus souvent choisi. Ses excellents paramètres thermiques et l’utilisation de matériaux provenant du recyclage en font une solution haut de gamme, parfaite pour compléter tout projet écologique. Grâce à l’utilisation de technologies et de matériaux modernes, MasterPatio garantit une haute qualité et une durabilité des systèmes, ce qui se traduit par la satisfaction des clients et une longue durée de vie des produits. Grâce à la large gamme de couleurs et de modèles, les portes coulissantes MasterPatio peuvent être adaptées aux besoins individuels et aux préférences des clients, ce qui en fait une solution parfaite pour ceux qui misent sur la haute qualité et l’écologie.
  • MasterPatio combine une excellente isolation thermique, des lignes fines visibles et des dimensions considérables des structures (hauteur max. de 3,6 m), Les supports brevetés des vitres garantissent un transfert parfait du poids sur les chariots de guidage, ce qui mène à une utilisation confortable.
  • Le système MasterPatio dispose d’une riche gamme d’options adaptées aux besoins individuels :
    • monorail – dormant à un rail avec vitrage de l’extérieur et de l’intérieur, 
    • dormant à 2 rails
    • dormant à 3 rails

La structure peut être complétée par un meneau fin qui apporte au système une touche de modernité. De plus, les portes coulissantes MasterPatio peuvent être également équipées d’une manouevre électrique qui facilite l’ouverture et la fermeture du système. C’est un choix parfait pour les personnes qui sont à la recherche de solutions modernes pour leurs maisons.

Types de vitrages décoratifs

  • Silvit
  • Master point
  • Master carre
  • Kura
  • Kathedral
  • Delta mat
  • Flutes incolore
  • Crepi
  • Chinchila
  • Delta incolore
  • Mirastar
  • Decormat
  • Stopsol clear
  • Stopsol brun
  • Antisol gris
  • Antisol vert
  • Antisol Bleu
  • Antisol brun
  • Stopsol vert

Intercalaires

  • Cadre chaud blanc RAL 9016

  • Cadre chaud marron RAL 8003

  • Intercalaire à bord chaud, noir

  • Cadre chaud gris RAL 7035

  • Cadre chaud gris RAL 7040

  • Intercalaire en aluminium

  • Cadre chaud marron RAL 8016

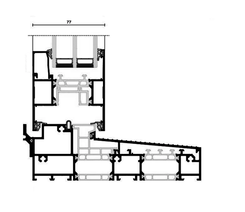
Informations techniques

Dessins techniques

Fichiers à télécharger